At the beginning of February 2025, our company exported one bedroom prefab homes to Spain again, which also marked the successful entry of our innovative houses into the market of Europe. It provides a wide space for China's advanced one bedroom prefab homes,This also confirms China's leading position in the field of sustainable, industrialized and family housing technology.

Factory-finished, consistent quality: All one bedroom prefab homes are prefabricated in a modern factory under strict control, with integrated plumbing, electrical piping and energy-saving insulation, significantly reducing on-site construction errors and material waste.
Rapid delivery, overturning the tradition: relying on modular technology, the cycle from contract to occupancy is shortened by more than 85%, and the project is expected to complete on-site assembly within a few weeks after the arrival of the components in Spain, which significantly reduces the pressure on the construction period of traditional buildings.
Green DNA throughout: The use of renewable building materials and efficient energy systems (e.g., polyurethane wall panels, rainwater recycling) reduces the carbon footprint of the entire building cycle by nearly 30% compared to traditional concrete homes, which is in line with the global trend of low-carbon buildings.

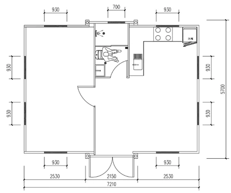
It is the first time for the customer to buy 40ft one bedroom prefab homes, before that, all the houses bought are 20ft one bedroom prefab homes. This time because the customization is stronger, we communicated for some time before finalizing, the layout is four rooms, one hall and two bathrooms, different from the regular layout plan is another bathroom is an inside bathroom, inside the bedroom, due to consider the folding problem, need to install the inside bathroom by the customer himself in the local area, for the customer in the wall sockets and so on are reserved. As far as possible to meet the customer's maximum demand.

Containerized housing is a great option for those looking for a fast, affordable housing solution. One of the biggest advantages is the speed of construction. Unlike traditional construction, one bedroom prefab homes can be built at any time of the year, greatly reducing move-in time. This is because their foundations are built in an assembly plant, while prefabricated structures are shipped to the site. In addition, the cost of acquisition is lower, making them more affordable to the general public.
Hot Tags: one bedroom prefab home, China one bedroom prefab home manufacturers, suppliers, factory, exterior panel wall, Glass Wool Sandwich Wall Panels










